Residence Hall Floor Plans | Western Technical College

Floor Plans

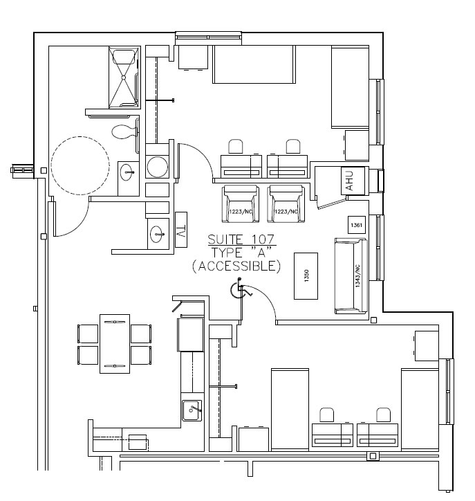
You can choose from four room layout options in the residence hall. All have equal square footage, just slightly different entrance areas.

For questions about the residence hall

Call Student Life to discuss your residence hall options and openings.

Student Life Office
Kumm Center, Room 100
411 7th Street North
La Crosse, WI 54601

Phone: 

Email: 

Hours:
Monday-Thursday: 8:00 a.m.-4:30 p.m.
Friday: 8:00 a.m.-4:00 p.m.